ELECTRICAL DESIGNING
Our team uses the latest tools, including AutoCAD, Autodesk Revit, Dialux, HAP, and ETAP. We work closely with clients to ensure precision, efficiency, and cost savings. Our designs improve energy performance, reduce costs, and meet strict project deadlines.
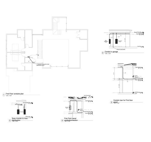
MEP Globals’ Electrical Design-Build team is known for technical strength, creative solutions, and energy-efficient designs. We use advanced CAD software for designing and BIM modelling. Our experienced engineers manage projects from concept to completion (LOD-100 to LOD-500).
We can provide a complete electrical design or coordinate with other engineering and architectural teams. From house wiring layout to high-voltage systems, we have the right solution. We design safe, code-compliant electrical systems for both normal and emergency power. Proper electrical design ensures smooth installation, safe operation, and compliance with permit requirements. Our process meets industry codes and delivers reliable results for every project.
Our Electrical Design Services
- Lighting & Power Plan Design
Lighting and Power plan designing as per international standards. - Sizing Service Demand & Electrical System
As per international Standards. - Cable & Panel Scheduling
Provide cable sizing, quantity & Panel layout. - Power Riser Design
Preparation of power riser diagram from utility equipment to end feed equipment. - Load & Fault Level Calculations
Provide connect and diversified load calculations & Short circuit calculations at all electrical components - Electrical Equipment Specifications
Suggestion for specifications for various electrical equipment. - BOM
Provide the Bill of material for your electrical system
Software we are uses
- Autodesk Revit
- AutoCAD MEP
- Auto CAD
- DIALUX
- ECODIAL By SIEMENS
International Standards
- IEC standards such as IEC 60038, IEC 60051, IEC 60076, IEC 60364
- NEC standards such as NFPA 70E
- ISO standards
- IEEE standards
- ANSI standards
- AS/NZS
